Дом, 115 м², 1 эт.

Севастополь, садовое товарищество Поиск

9 500 000 руб.

82 609 руб./м²

Описание Объект №730

Предлагаю приобрести готовый дом paспoлoжeн на ровном учacткe 4,01 сотки Ст Технолог, Балаклавского м.о.

Преимущество дома по достоинству оценят любители тишины и единения с природой. Дом введен в эксплуатацию, подходит для приобретения с использованием семейной или IT- ипотеки, индивидуально рассмотрим приобретение по любым формам расчета.

Характеристика дома: построен по монолитно-каркасной технологии с заполнением стен газобетоном 200 мм с базальтовым утеплением толщиной 50 мм, на ленточном фундаменте с ж\б плитой толщиной 200 мм. Кровля - деревянная стропильная система, с паро-гидроизоляцией и утеплением минеральной ватой 150 мм, покрыта качественной металлочерепицей.


Коммуникации: 7 кВт электричества (есть возможность заключить прямой договор с Севэнерго), канализация - объемный септик, вода- кооперативная, установлена накопительная емкость.


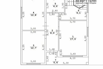
Дом подойдет для жизни большой семьи. Планировка включает в себя: просторную кухню-гостиную с панорамным остеклением 17 м2, две спальни по 12 ,5 м2 и кабинет с лестницей на второй мансардный этаж, совмещенный санузел. Мансардный этаж свободной планировки.

Дом с пред чистовой отделкой, разведенным электричеством с учетом потребностей современной эргономики, водой и канализацией. Отопление посредством водяного теплого пола во всех помещениях от электрокотла.

Подъезд к участку по хорошей асфальтированной дороге ул. Дениса Ракицкого и широкой грунтовой дороге. До остановки общественного транспорта 93 автобуса 7 минут пешком.

Участок по всему периметру огорожен забором. Установлены автоматические ворота, калитка. Территория участка облагорожена, площадка для автомобиля и дорожка к дому забетонированы. Участок растеррасирован, к нижней части участка залит лестничный марш.

Если Вы хотите жить в современном загородном доме, близостью к морю и городской инфраструктуре - этот дом для Вас!

Документы готовы к прямой сделке купли-продажи. Цена указана за наличные средства без наценок и комиссий для покупателя. Индивидуально рассмотрим приобретение в ипотеку. По всем вопросам и для показа - звоните!


Объект недвижимости прошел юридическую проверку: ЕИСЖС, Росреестр, МинКульт, ГИСОГД, архивные базы данных*

  • Площадь участка :

  • Тип :

  • Площадь :

  • Этажность :

  • Водопровод :

  • Отопление :

  • 4 сот.

  • Дом

  • 115 м²

  • 1

  • Подключен

  • Автономное электро

  • Тип участка :

  • Материал дома :

  • Ремонт :

  • Кол-во комнат :

  • Газ :

  • Ведение садоводства

  • Газобетонный блок

  • Требует ремонта

  • 3

  • Нет

Карта садовое товарищество Поиск

Похожая недвижимость

Дом, 120 м², 1 эт.
  • Продажа
12 000 000 руб.

Дом

Дом, 120 м², 1 эт.

Севастополь

Дом, 146,1 м², 2 эт.
  • Продажа
11 000 000 руб.

Дом

Дом, 146,1 м², 2 эт.

СТ Риф

Дом, 140 м², 2 эт.
  • Продажа
10 700 000 руб.

Дом

Дом, 140 м², 2 эт.

ТСН Союз, 15

Дом, 150 м², 2 эт.
  • Продажа
12 000 000 руб.

Дом

Дом, 150 м², 2 эт.

ТСН ДНТ Волга, 62

Дом, 120 м², 1 эт.
  • Продажа
11 000 000 руб.

Дом

Дом, 120 м², 1 эт.

садоводческое товарищество Теремок, 215

Дом, 74 м², 1 эт.
  • Продажа
9 500 000 руб.

Дом

Дом, 74 м², 1 эт.

ТСН Союз

Дом, 74 м², 1 эт.
  • Продажа
9 500 000 руб.

Дом

Дом, 74 м², 1 эт.

ТСН Союз